RandomWalk
Senior Member
- Joined
- Feb 2, 2014
- Messages
- 3,713
- Reaction score
- 6,497
North Cambridge.
While I'm aware of the impacts COVID had on projects, blaming a three year on it is absurd, there was a lot more going on hereMBTA Celebrates Opening of Newly-Accessible Natick Center Station
The project took more than five and a half years to complete, with a budget of $40 million. The original construction plan called for the project to be finished by 2022, but the Covid-19 pandemic delayed work considerably………”
MBTA Celebrates Opening of Newly-Accessible Natick Center Station - Streetsblog Massachusetts
On Monday afternoon, elected officials and accessibility advocates convened in Natick to celebrate the grand opening of the new, fully-accessible Natick Center station on the Framingham-Worcester Line.mass.streetsblog.org
There was a major retaining wall on the station that had to go back into design in 2020 after construction started because they found unstable soil conditions while excavating. That chewed up most of 2021, such that by February 2022 they were already projecting slippage to a Fall 2024 opening. They then lost another year at the end due to materials shortages for the platforms; progress was stuck at 70-75% completion from November 2023 to December 2024 because of that.While I'm aware of the impacts COVID had on projects, blaming a three year on it is absurd, there was a lot more going on here
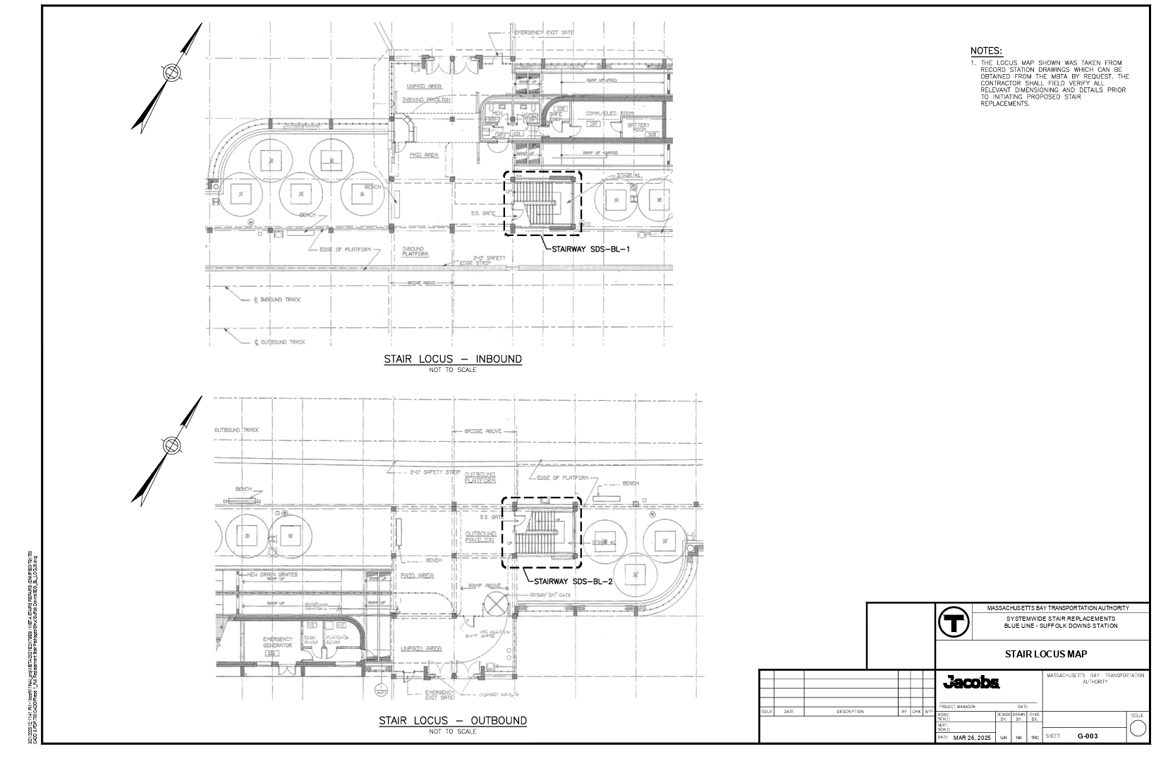
The Massachusetts Bay Transportation Authority (MBTA) wishes to construct two new staircases, one on the inbound platform and one on the outbound platform, at the Suffolk Downs Station located in Boston, MA.
The contractor will supply a full time Contractor Representative that will be the main point of contact for all operations. This person will have the authority and expertise to direct the contractor’s operations as necessary to complete the scope of work within the bounds of the MBTA operational requirements.
Work elements that shall be incidental to the work items listed shall include, but not limited to, Mobilization/Demobilization, Limiting Impacts to MBTA Operations, Traffic and Parking Staging and Mitigation, Maintaining Pedestrian Access, Temporary Signage, Sweeping, and Site Restoration.
The work is to be substantially completed, involving opening of both stairs to the public, 11 months following issuance of a Purchase Order by the MBTA.
All official inquiries and bid submissions must be conducted through COMMBUYS, the Commonwealth’s procurement platform:
COMMBUYS - /view/login/login.xhtml
www.commbuys.com
Pre-Bid Meeting: 07/01/2025 | 1:00 PM | Suffolk Downs Station
Category: Construction Services
Buyer: Steven Pelczar | 978-802-0635 | SPelczar@MBTA.com
Additional information: https://www.commbuys.com/bso/bid/bidSummary.sdo?docId=BD-24-1206-40000-40000-118176&mode;=initial
Hold one minute, I actually have the plans for that RFP - basically all they're doing is replacing the stairs in the dashed box. The contractor work area is a little larger, but thats about it.Looks like Suffolk Downs will be getting new stairs. I presume this is an interim measure rather than the full scope of planned renovations. It's listed under bids pending award:
Impressive rebuild of the platform. But, does it strike anyone else as kind of odd that more of the platforms aren't being made with precast elements?
Precast is pretty much standard these days for new Commuter Rail full-highs, so they are definitely making extensive use of it. I don't know if it works too well for repairs/resurfacing on top of old foundations, though. You'd probably have lots of alignment issues to pound out that way.Impressive rebuild of the platform. But, does it strike anyone else as kind of odd that more of the platforms aren't being made with precast elements?