West Roxbury Infill and Small Developments

why not recognize that open space is precious and NOT develop any of these lots on Allandale, and in fact, raze the existing houses and expand the woods so they are more contiguous with the open spaces of Allandale Farm and the Arboretum? Why does there need to be development here at all? This is not regressive at all. It may be unrealistic, but certain spaces actually should be DEconstructed and that would be genuinely good urbanism.

Centre Street is literally a stones throw from here. Upzone that. Upzone Rozzie Sq. The addiction to density at all costs seen in urbanist forums betrays a sad lack of appreciation for context.

If every conversion of a gas station to something as audacious as a 3-story building on Washington leads to years of squabbling, of course we will be in a housing crisis and of course people will be excited about "yay, let's pave the woods". This is a bad development, that is going to absolutely and utterly ruin a truly magical hidden oasis that most people on here have probably never even been aware of. It's a real loss, and it's sad.
I'm absolutely not a density-at-all costs urbanist. Two big reasons I'm pro-density is that it leaves more space to preserve nature and history.

I agree that expanding Allendale woods to include the entire parcel would be great. But that would require the current owner to either sell their land to the city, or voluntarily submit to a conservation easement on it, right? Will that ever happen?

If that's not going to happen, then I fail to see how the *current state of the lot* is any better than what the developer proposes. It's a private SFH with a yard and some woods now. After development, it'll be a few condos with yards and about the same amount of woods, *plus* a deed restriction on those woods, which sounds like a good thing to me.

You're right, though, I've never been in Allendale woods, so I must be missing something. Is it that the woods on the parcel will be impacted by the abudding redevelopment? Is it a particularly nice SFH+yard, that adds to the beauty of the nearby woods?
 
why not recognize that open space is precious and NOT develop any of these lots on Allandale, and in fact, raze the existing houses and expand the woods so they are more contiguous with the open spaces of Allandale Farm and the Arboretum? Why does there need to be development here at all? This is not regressive at all. It may be unrealistic, but certain spaces actually should be DEconstructed and that would be genuinely good urbanism.
I mean, the obvious answer is that we have pretty strong property rights in this country and not many people as passionate as you are about rearranging that concept. We should definitely protect what we have currently set aside, but I don't think there is a lot of opportunity to expand places like Allandale Woods without some very funky legal wrangling.

I definitely agree with your overall point, that we should significantly upzone nearby places that are already built at lower density. But as far as this lot goes, the proposal seems better to me than what is there now, and won't particularly change the overall experience of the woods.
 
Beyond the importance of property rights, zoning will always be a consideration for projects like these. Reading the BPDA filing, the applicants explicitly note that this will require relief due to the project going beyond current zoning limits, which are single family, detached, 8,000sf lot size minimum. Top of Page 8 makes it clear:

"Per Map 11B of the West Roxbury Neighborhood District, the Proposed Project is located within a 1F-8000 subdistrict. Based on a zoning analysis, the Proposed Project requires zoning relief and will be seeking variances from the City of Boston’s Zoning Board of Appeals."

I say this not at all sarcastically (and as someone who think this parcel should already be zoned much higher): If someone lives in West Roxbury and doesn't like this project, then write into the open comments and point out noncompliance with zoning regs. Write your city councilor. Make some noise. I hope this goes through, personally, and that the deed restriction preserves the lot area closest to the woods, but these developers are going to face NIMBYs making these exact arguments and they will be at the mercy of the BPDA as to whether or not this gets approved.
 
I'm absolutely not a density-at-all costs urbanist. Two big reasons I'm pro-density is that it leaves more space to preserve nature and history.

I agree that expanding Allendale woods to include the entire parcel would be great. But that would require the current owner to either sell their land to the city, or voluntarily submit to a conservation easement on it, right? Will that ever happen?

If that's not going to happen, then I fail to see how the *current state of the lot* is any better than what the developer proposes. It's a private SFH with a yard and some woods now. After development, it'll be a few condos with yards and about the same amount of woods, *plus* a deed restriction on those woods, which sounds like a good thing to me.

You're right, though, I've never been in Allendale woods, so I must be missing something. Is it that the woods on the parcel will be impacted by the abudding redevelopment? Is it a particularly nice SFH+yard, that adds to the beauty of the nearby woods?
Expanding the woods is unlikely, yes, but a more realistic proposal that the city should actually be considering is development of lots that currently comprise or abut large tracts of undeveloped land. The divvying up of that old estate near the Hellenic College is another example -- and egregious one -- of this.

The impact this will have on the woods is significant. The Allandale Woods are a very strangely shaped parcel and when you get to the out pocket this current lot abuts, you feel like youre way down in some magical little area, a lowland with a stream and an old octagonal wooden pump house. The house being torn down sits far from the woods parcel and has plenty of trees on its lot. As developers always do, they will clearcut this entire lot, cutting down every single tree, and while I am sure we'll here all the usual bullshit about "restoring native plantings" the fact is that what is now a secluded feeling oasis will have a big gaping whole devoid of trees with a glaring view of six houses staring you down. It will go from feeling like you're deep "in the woods" to feeling like youre walking in greenspace next to a bunch of houses. This stuff does matter and "seclusion" is rare in cities and is an atmosphere that should be protected for the benefit of both people and animals.

I highly recommend exploring these woods thoroughly and if you go now, you might catch the annual visit all the local toads make to a large vernal pool there--hundreds, from miles around, making lots of noise and mating en masse. Usually happens at the very end of April. It's pretty amazing.
 
As developers always do, they will clearcut this entire lot, cutting down every single tree, and while I am sure we'll here all the usual bullshit about "restoring native plantings"
OK, I'm with you, that will be tragic. I'd hoped/assumed the deed restriction would stop them from doing that.
 
  • Like
Reactions: FK4
OK, I'm with you, that will be tragic. I'd hoped/assumed the deed restriction would stop them from doing that.
Honestly it would be better if they just built one or two 8-10 story towers right on Allandale. You could get twice as many housing units as all of these sprawling quasi suburban projects combined, and preserve 90% of the green space. Do it right next to Faulkner even, leave the rest. But that would make too much sense.
 
Honestly it would be better if they just built one or two 8-10 story towers right on Allandale. You could get twice as many housing units as all of these sprawling quasi suburban projects combined, and preserve 90% of the green space. Do it right next to Faulkner even, leave the rest. But that would make too much sense.

Def seems like it's going for the "It's like an SFH, totally!" Townhome concept.

It looks like you would need the parking so not sure a tower works there.
 
I'm with @FK4. These trying-too-hard-to-look-subruban car-centric developments (1) don't make a dent in the housing shortage, (2) don't improve the urban environment (3) add more cars to the roads, and (4) in this case, threaten to destroy something that is a genuine asset.

Putting aside the effect on the woods, I really don't want to see this type of development anywhere in Boston.
 
  • Like
Reactions: FK4
I'm with @FK4. These trying-too-hard-to-look-subruban car-centric developments (1) don't make a dent in the housing shortage, (2) don't improve the urban environment (3) add more cars to the roads, and (4) in this case, threaten to destroy something that is a genuine asset.

Putting aside the effect on the woods, I really don't want to see this type of development anywhere in Boston.
Great point, and one that is applicable in many places (such as the Crane Woods debacle in Hyde Park).
 
Honestly it would be better if they just built one or two 8-10 story towers right on Allandale. You could get twice as many housing units as all of these sprawling quasi suburban projects combined, and preserve 90% of the green space. Do it right next to Faulkner even, leave the rest. But that would make too much sense.

Are these woods used for walking/trail running? I am wondering if a frontage road along VFW Parkway and a few 8-10 story towers would make sense here? Not even 8-10, I would think 4-6 would be fine and allow more trees/greenspace while also maximizing the footprint for more housing.



1714702082510.png
 
Are these woods used for walking/trail running? I am wondering if a frontage road along VFW Parkway and a few 8-10 story towers would make sense here? Not even 8-10, I would think 4-6 would be fine and allow more trees/greenspace while also maximizing the footprint for more housing.



View attachment 50159
Running, not really. There's trails in these woods, and it is a decent enough nature walk considering its location. I've started my walk before on that patch to the bottom left, and having to cross the VFW really can take you out of it. I'd say that's the real tragedy of the area. Once you're on the other side though, it's pretty easy to get immersed.

That being said, while I understand the sentiment on not wanting encroachment on these woods by some townhomes, I feel like the reaction here's overblown. The plot being developed is on the far side of these woods, and wouldn't really impact your experience walking though Allandale. Should it be denser, sure, should other, underutilized parcels in more urbanized areas be redeveloped first, absolutely, but this isn't going to somehow ruin Allandale, which, if not outright stated, is the sentiment I'm getting from the arguments here.
 
Running, not really. There's trails in these woods, and it is a decent enough nature walk considering its location. I've started my walk before on that patch to the bottom left, and having to cross the VFW really can take you out of it. I'd say that's the real tragedy of the area. Once you're on the other side though, it's pretty easy to get immersed.

That being said, while I understand the sentiment on not wanting encroachment on these woods by some townhomes, I feel like the reaction here's overblown. The plot being developed is on the far side of these woods, and wouldn't really impact your experience walking though Allandale. Should it be denser, sure, should other, underutilized parcels in more urbanized areas be redeveloped first, absolutely, but this isn't going to somehow ruin Allandale, which, if not outright stated, is the sentiment I'm getting from the arguments here.
I beg your pardon, but no, it's not overblown. And I did not say it would ruin the entire woods, but that it would—completely, and utterly—ruin the parcel of these woods that contains the springhouse. If you have one iota of appreciation for woods beyond simply the technical definition of some trees, and appreciate what it is like to walk in a secluded area and stumble upon something charming, you would know what I am speaking of here. You have to walk through the woods a ways and then the elevation dips down to a wetland, and in a clearing at the far back of the woods, there is this old 19th century octagonal springhouse and some benches and chairs for people to sit, relax, I often see someone sitting there reading or picnicking. You can partially see the house which is the current address of 90 Allandale, but it's way back on a rise close to the road and partially obscured by trees. In short, this is an oasis. It couldn't be a more peaceful spot and is a very special and unique place that most people aren't even aware exists (perhaps yourself included) and this will be completely ruined with a multitude of block houses now staring you in the face. And without the oasis, the whole area becomes "just another woods". So no, this is not overblown, and this actually matters. This development is shit.
allen9.jpg

The left side of the first picture is the wall of vegetation that will be replaced by two condo buildings.
Screenshot_20240430-130031.png


If you look closely, the springhouse is right up against the embankment they're building. No more vegetation, no more seclusion, just another shitty, boring, pseudo-urban but really suburban development and one less quiet, leafy green space you can find in Boston. Go there and look at the site and see for yourself.


*****************

The problem I have and that I alluded to upthread and have before is that the urbanist crowd is so jaded about forces fighting against good density, transportation etc that they see any opposition to any development as wanton NIMBYism. This board has seen plenty of that regarding the various development proposals (such as stick's "unfortunately the neighbors bitched about density" comment right upthread. The fact is that 1) not all opposition to development is NIMBYism and 2) some NIMBYist causes are still the right cause for the greater good, even if the people doing the fighting have more personal and selfish motives.

I would add one last thing, which is that there is a charm to the quiet roads of this part of Boston, mostly Brookline. These roads are part of a network of old colonial roads, many of which were built right of old Native American footpaths (Allandale connects you to the system of roads including Pond, Prince, Goddard, Cottage, Walnut, Heath—some of the oldest roads around here, not to mention Walter and Centre, which, while ruined by widening, note that one of the mile markers from the 1700s is at Allandale & Centre, built into the stone wall of the Arboretum, and it's in that location because Faulkner sits on the site of a colonial tavern once owned by Sam Adams). Allandale retains that feeling and it's very obviously a very old road the moment you turn onto it. There is also something to be said for preserving quiet and historical roads, for their own sake, as well. Allandale is quaint and nice as it is. It doesn't need to be crammed full of homes, gleefully laid out alongside plenty of schadenfreude from urbanists happy to see what's seen as enlightened development being rammed down the throats of reactionary entitled suburbanites. Sometimes things are just fine the way they are, and should be preserved as such.

Build up Rozzie. Build up the corridors of WR. Leave this area alone.
 
Last edited:
I beg your pardon, but no, it's not overblown. And I did not say it would ruin the entire woods, but that it would—completely, and utterly—ruin the parcel of these woods that contains the springhouse. If you have one iota of appreciation for woods beyond simply the technical definition of some trees, and appreciate what it is like to walk in a secluded area and stumble upon something charming, you would know what I am speaking of here. You have to walk through the woods a ways and then the elevation dips down to a wetland, and in a clearing at the far back of the woods, there is this old 19th century octagonal springhouse and some benches and chairs for people to sit, relax, I often see someone sitting there reading or picnicking. You can partially see the house which is the current address of 90 Allandale, but it's way back on a rise close to the road and partially obscured by trees. In short, this is an oasis. It couldn't be a more peaceful spot and is a very special and unique place that most people aren't even aware exists (perhaps yourself included) and this will be completely ruined with a multitude of block houses now staring you in the face. And without the oasis, the whole area becomes "just another woods". So no, this is not overblown, and this actually matters. This development is shit.
View attachment 50189
The left side of the first picture is the wall of vegetation that will be replaced by two condo buildings.
View attachment 50190

If you look closely, the springhouse is right up against the embankment they're building. No more vegetation, no more seclusion, just another shitty, boring, pseudo-urban but really suburban development and one less quiet, leafy green space you can find in Boston. Go there and look at the site and see for yourself.
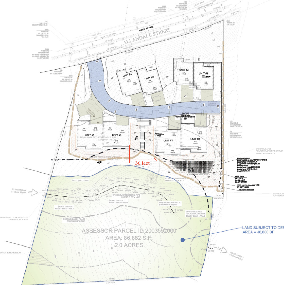
Ermmm.... So I went and looked for the drawings they filed with BDPA. So if you look at this overhead aerial view, with the property limits superimposed, you can see that the line of trees you refer to as a "wall of vegetation" is wholly outside the boundaries of this site, and in fact the existing home's driveway /lawn is encroaching on the the Springhouse site. The embankment/retaining wall is proposed right on the property line, which would bisect the car. That would itself be screened from view by those trees, and likely enable a deeper "wall" of natural wilds than exists today.
1000032825.jpg

Looking at the landscape plan, it appears that the current cleared area is delineated by the solid line outside the property limits, as based on pictures it appears that the previous owners mowed and maintained a lawn around those trees outside the property line. I think it's safe to assume the developers are going to only build on and maintain what they have rights to, so the abandonment of that encroachment (and it's subsequent rewilding) is worth something on its own. Also, I feel compelled to point out that it appears that all the light green trees are existing to remain; they're not proposing to clearcut the site. I'd say this is actually relatively sensitively done, especially since this site is well below the grade of Allendale St itself, I don't expect it to be particularly visible.
1000032827.jpg


Just to be clear though - I do think something like this probably shouldn't need to be built, but I overall think it's net neutral to slightly positive to the existing environment.
 
Last edited:
Ermmm.... So I went and looked for the drawings they filed with BDPA. So if you look at this overhead aerial view, with the property limits superimposed, you can see that the line of trees you refer to as a "wall of vegetation" is wholly outside the boundaries of this site, and in fact the existing home's driveway /lawn is encroaching on the the Springhouse site. The embankment/retaining wall is proposed right on the property line, which would bisect the car. That would itself be screened from view by those trees, and likely enable a deeper "wall" of natural wilds than exists today. View attachment 50193
Looking at the landscape plan, it appears that the current cleared area is delineated by the solid line outside the property limits, as based on pictures it appears that the previous owners mowed and maintained a lawn around those trees outside the property line. I think it's safe to assume the developers are going to only build on and maintain what they have rights to, so the abandonment of that encroachment (and it's subsequent rewilding) is worth something on its own. Also, I feel compelled to point out that it appears that all the light green trees are existing to remain; they're not proposing to clearcut the site. I'd say this is actually relatively sensitively done, especially since this site is well below the grade of Allendale road itself, I don't expect it to be particularly visible.
View attachment 50194

Just to be clear though - I do think something like this probably shouldn't need to be built, but I overall think it's net neutral to slightly positive to the existing environment.
Thanks for this. I hope you're right. However, I have seen a couple different maps and plans over the last few years that show houses right up against the springhouse. I can't actually see where the structure is on the landscaping image you posted: if it's actually below the edge of the image, then... you're right and this will not ruin the atmosphere. I really, really hope that is the case. And I would back my hysterics down a little, to agree with you that this still is not a great use of space but leave it at that.
 
Thanks for this. I hope you're right. However, I have seen a couple different maps and plans over the last few years that show houses right up against the springhouse. I can't actually see where the structure is on the landscaping image you posted: if it's actually below the edge of the image, then... you're right and this will not ruin the atmosphere. I really, really hope that is the case. And I would back my hysterics down a little, to agree with you that this still is not a great use of space but leave it at that.
If it helps, I've superimposed the two images. I assume the Springhouse is the round thing in the lower right.
Photo_1714837607813.png
 
If it helps, I've superimposed the two images. I assume the Springhouse is the round thing in the lower right. View attachment 50218
Still dont like the presence of the two buildings on the lower right.

In any case, I think it would be sensible land use policy to make it more difficult to develop parcels in the city of Boston that are above a certain acreage.
 
It's a good thing that was approved, because most of the site demolition already happened.
 

21-Unit Condo Project Approved in West Roxbury​

“The now-approved West Roxbury project at 1905-1901 Centre Street will convert a site with two vacant buildings into 21 new homes and retail space. The building will include all two-bedroom condos with ground-floor retail space.”

centre


https://www.bldup.com/posts/21-unit-condo-project-approved-in-west-roxbury
Just so hideous. I don’t know why suburban density has to always pander to this grotesque pseudo-vernacular of the plastic condo version of New England 19th century architecture.
 

121-unit apartment complex approved near Millennium Park in West Roxbury​


Rendering of proposed 100 Charles Park Rd.


“The Zoning Board of Appeal today approved plans by a developer to replace the last vestiges of Pizzeria Uno in Boston - its former corporate headquarters on the road to Millennium Park - with a two-building, five-story complex with 191 apartments….”

https://www.universalhub.com/2024/121-unit-apartment-complex-approved-near
 

Back
Top